Leilighet 305

3. ETASJE

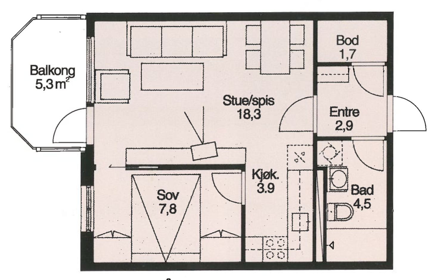
ROM

1 soverom, stue, bad, balkong

PRIS

Kr 10.400,-

KVADRATMETER

41 kvm BRA

PLANTEGNING

(Speilvendt)

FASILITETER

FELLESFUNKSJONER

  • Sykkelparkering i stativer ute samt mulighet for sykkelparkering innendørs i et avsatt felles område i parkeringskjelleren.

  • Leie av innendørs p-plass for NOK 500 pr. mnd. Smestad Boligstiftelse har totalt 58 plasser for utleie. Begrenset med muligheter for utendørs parkering i nærområdet

  • Heis som betjener alle etasje fra parkeringskjeller og opp til takterrassen (som er for alle leietagere).

PRAKTISK INFORMASJON

  • Opplegg for oppvaskmaskin, stikk for komfyr og kjøl/frys på kjøkken samt opplegg for vaskemaskin på bad. Hvitevarer medfølger ikke.

  • Leilighetene leies umøblert.

  • Leietager tegner eget strømabonnement.

  • Get-kabel med bredbånd og digital-tv – grunnpakken inkludert i husleien.

LEIEVILKÅR

  • Leilighetene er egnet for 1-2 voksne (ett par), 1 voksen og 1 barn.

  • Leieperioder på 3 år. Minstetid på 1 år, deretter 3 måneders oppsigelsestid for leietager. Utleier kan ikke si opp i den avtalte 3-årsperiode.

  • Depositum: tilsvarende 4 måneders husleie som innbetales til egen depositumskonto i leietakers navn. Såkalte depositumsgarantier aksepteres ikke.

  • Det er ikke tillatt å holde husdyr, så som katt eller hund m.v., i leiligheten.

Adresse

Hoffsveien 50

Smestad Boligstiftelse

0377 Oslo

 

Interessert i denne leiligheten?
Ta kontakt med oss